Omakotitalo, Telaniitynkuja 2 D, Espoo, 6h, k, rt, s-os, khh, kph, 2 x erill. wc + harrasteh., at, var, 192 m², 1 388 000 €
MODERNEJA MAALÄMPÖTALOJA VEHREÄÄN HAUKILAHTEEN
Hienoja uutisia Haukilahdesta uutta kotia harkitseville perheille: neljä upeaa maalämpötaloa rakennetaan osoitteeseen Telaniitynkuja 2. Omakotitalot valmistuvat kukin omalle hallinta-alueelleen yhteiselle tontille. Rauhallinen ja viihtyisä naapurusto sijaitsee lähellä palveluja: suomen- ja ruotsinkielisiä päiväkoteja ja kouluja, marketteja ja kauppakeskuksia sekä sujuvia kulkuyhteyksiä ja rantaraittia.
HELPPO TAPA MUUTTAA UUTEEN
Kaikki suunnitelmat, luvat ja tontti ovat valmiina, ja luotettava kotimainen Rakennusliike PR-Yhtymä Oy vastaa hankkeen valmistumisesta aikataulun mukaisesti. Itse talon, terassin ja terassiparvekkeen lisäksi oma piha tuo asumiseen iloa, valmis nurmipiha odottaa lasten leikkejä ja viherpeukalon ideoita. Nopeana ostopäättäjänä ehdit myös vaikuttaa pintamateriaalien ja varusteiden valintaan sekä tilata lisätyönä mm. parvekelasituksen.
TALOT A JA B
Avarassa aulassa lasten pukeminen käy leikiten ja viereisessä kodinhoitohuoneessa hoidellaan sujuvasti pyykit ja kurakengät. Autotallista ja -katoksesta pääsee kuivin kengin suoraan alakertaan. Kaksi makuuhuonetta tarjoaa omaa rauhaa perheen nuorille tai etätyöpäiviin. Saunatiloja avartaa lasiseinä löyly- ja pesuhuoneen välissä. Sadesuihkuja on kaksi ja löylyhuoneessa tuuletusikkuna. Arkiolohuoneesta mennään suojaisalle terassille vilvoittelemaan löylyjen lomassa. Upean aurinkoisessa yläkerrassa Poggenpohlin -saarekekeittiö, ruokailutila ja olohuone ovat yhtenäistä tilaa. Liesisaarekkeen äärellä on mukavaa kokkailla, saarekkeen äärellä siemaistaan kahvit ja välipalatkin. Seinän kokoiset maisemaikkunat ja lasiliukuovi avautuvat osittain katetulle isolle terassiparvekkeelle. Yläkerran päämakuuhuoneesta on käynti vaatehuoneeseen ja edelleen yläkerran kylpyhuoneeseen. Toinen makuuhuone on keittiön vieressä.
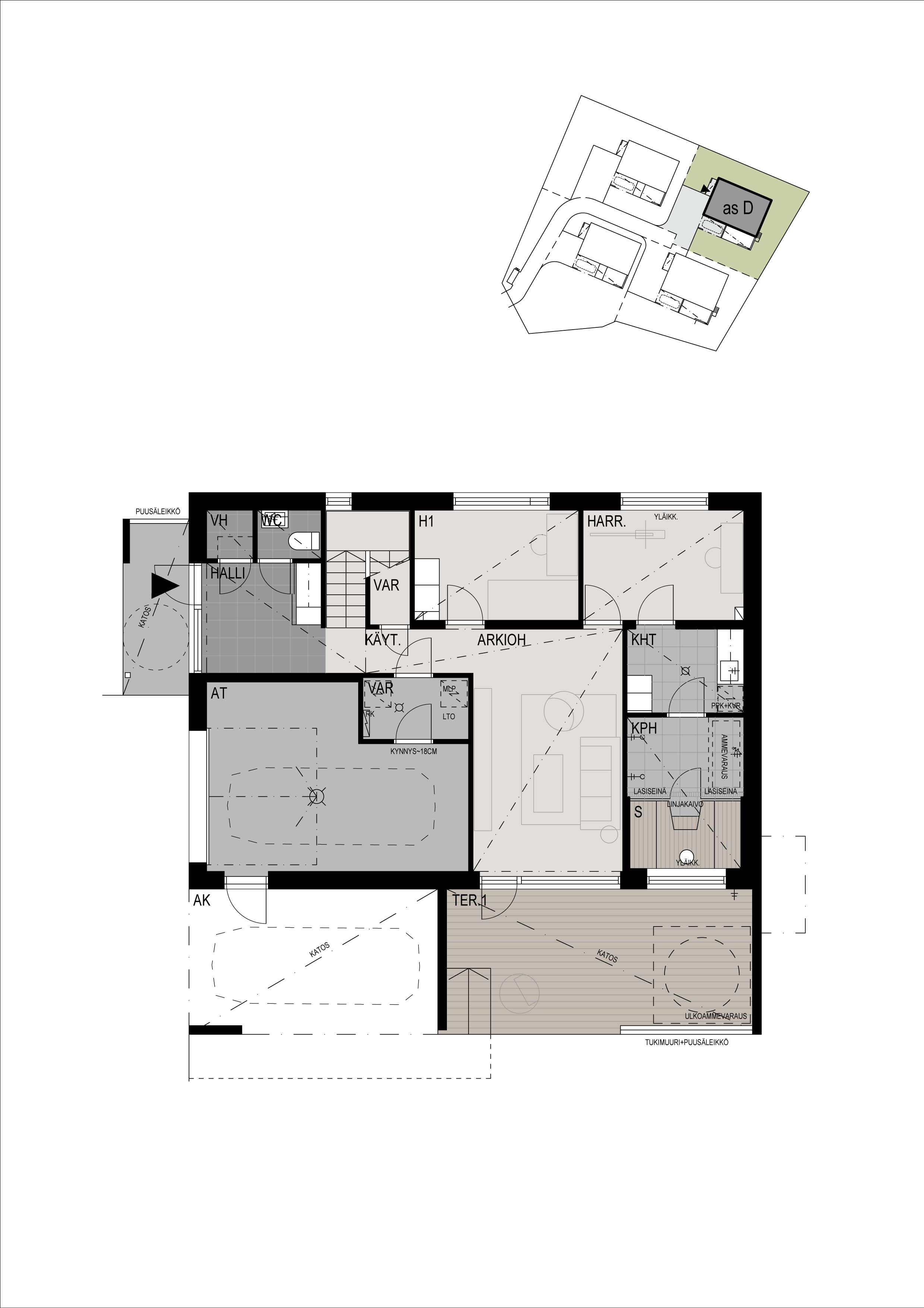
TALOT C JA D
Talot C ja D ovat nekin lapsiperheille ihanteellisia. Eteisen yhteydessä on vaatehuone ja pikkuvessa. Autotallista ja -katoksesta on käynti suoraan alakertaan. Makuuhuoneen vieressä on harrastehuone, josta on käynti kodinhoitotilaan ja edelleen saunatiloihin. Pesuhuoneessa on kaksi sadesuihkua ja tilavaraus ammeelle; löylyhuoneessa on vastakkain istuttavat lauteet ja tuuletusikkuna. Arkiolohuoneesta on käynti suojaisalle terassille, jonne saa lisätilauksesta porealtaankin. Yläkerrassa on kolme makuuhuonetta, joista päämakuuhuoneella on oma suihkullinen kylpyhuone ja vaatehuone. Pikkuvessa on lisäksi erikseen. Muutoin yläkerta on kuten A- ja B-taloissa: maisemaikkunoiden valossa kylpevä saarekekeittiön, ruokailutilan ja olohuoneen hurmaava kokonaisuus sekä osittain katettu upea terassiparveke.
ENERGIATEHOKAS MAALÄMPÖTALO
Kaksikerroksisten talojen runko muurataan Lammin lämpöharkoista: talon kivirunko ei pala eikä lahoa, sen sijaan se eristää tehokkaasti lämpöä ja ääntä. Vesikiertoiseen lattialämmitykseen liitetty maalämpö on isossa talossa järkiratkaisu, samoin koneelliseen ilmanvaihtoon liitetty LTO-laite. Energiatehokkuutta osaltaan takaavat uudet kodinkoneet ja LED-valaistus, sähköautolle on varaus latauspistokkeelle. Laadukkaasti rakennettu kivitalo turvaa asumisen huolettomuutta vuosikymmeniksi eteenpäin.
MUITA TIETOJA
Kohteen osoite on Telaniitynkuja 2, 02170 Espoo. Kohde sijaitsee omalla 2485 m² suuruisella tontilla Espoon 14. kaupunginosassa, korttelissa 2, tontilla 3. Tontti jaetaan hallinnanjakosopimuksella talojen A, B, C ja D kesken. Kiinteistötunnus 49-14-2-3. 
Kohdetta myy
Esittely
Perustiedot
02170 Espoo
Hinta ja kustannukset
Laskettu velattomasta myyntihinnasta.
Lisätiedot
Asunnon tilat ja materiaalit
Lammi betoniharkko
Katon pintamateriaali: Huopakate
Asunnon tontti
Muut lisätiedot
Toppelundin ja Niittykummun koulut, luokat 1-6. Haukilahden koulu, luokat 7-9.
Mattlidens skola och gymnasium sekä Tapiolan koulut. Useita päiväkoteja.













